New - 2 Days Ago
$895,000
Active
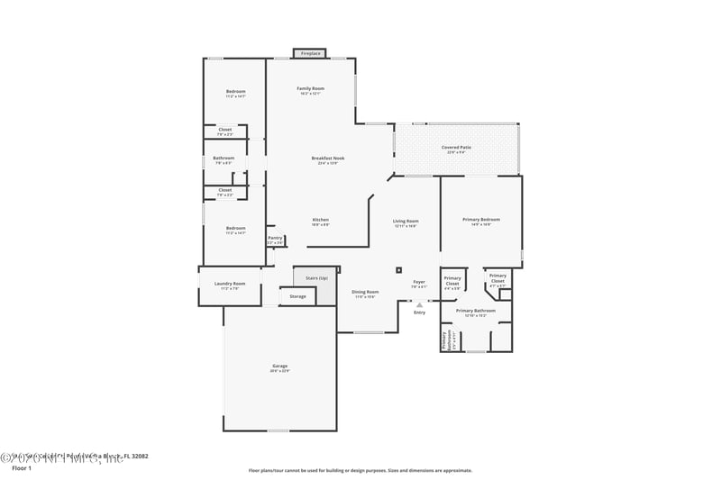
4
Beds
3
Baths
1825
Sqft
0.19
Acres
133 Coastal Oak Cir, Ponte Vedra Beach, FL 32082
MLS#: 2133754
$885,000
ACTIVEKATHRYN HUGHES JOHNSON, RE/MAX SPECIALISTS PV
realMLS, MLS#: 2123513


KATHRYN HUGHES JOHNSON, RE/MAX SPECIALISTS PV
realMLS, MLS#: 2123513

Wondering if this property sits in a flood zone? I can verify the address and tell you what it means in plain English.
Copy/paste to message me: “Can you run a flood check on this listing?”