Back to Search
117 Glen Eagles Ct, Ponte Vedra Beach, FL 32082
117 Glen Eagles Ct, Ponte Vedra Beach, FL 32082
117 Glen Eagles Ct, Ponte Vedra Beach, FL 32082
117 Glen Eagles Ct, Ponte Vedra Beach, FL 32082
117 Glen Eagles Ct, Ponte Vedra Beach, FL 32082
117 Glen Eagles Ct, Ponte Vedra Beach, FL 32082
117 Glen Eagles Ct, Ponte Vedra Beach, FL 32082

117 Glen Eagles Ct Ponte Vedra Beach, FL 32082

$995,000

ACTIVE
Beds
4
Baths
4
Sqft
3,070
Acres
0.33
Year
1990
Days on Site
3
Property Type
Residential
Sub Type
Single Family
Per Square Foot
$324
Date Listed
Mar 12, 2026

Description of 117 Glen Eagles Ct, Ponte Vedra Beach, FL 32082

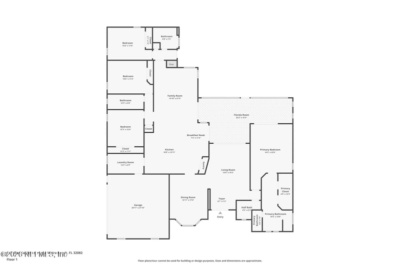
Listing details for 117 Glen Eagles Ct, Ponte Vedra Beach, FL 32082 : Welcome to your new home. This wonderful, custom-built, 4-bedroom, 3.5-bathroom home is your ticket to a lifestyle of comfort, convenience, and community. Nestled in a coveted section of the gated Fairfield neighborhood in Ponte Vedra Beach, you'll enjoy the perfect blend of tranquility and accessibility. One of the highlights of this location is its convenience. You can easily bike to the beach, to Starbucks, Panera, various other restaurants and stores, and even to the Ponte Vedra Concert Hall. If you like golf you can walk to the TPC. A short 5-minute drive will take you to all the stores, boutiques and restaurants in Sawgrass Village. Additionally, you will be located within the top-rated school district in Florida. The home sits on a large, 1/3-acre, fenced, preserve lot, offering privacy, space, and peaceful surroundings. The house itself is lovely, having been completely remodeled in 2012 and then continuously maintained and updated to create a warm, cozy and stylish space. It faces East, which brings in the morning sunlight to the living and dining rooms, while the main part of the home is lit up by the sun in the afternoon. Some of the features are: Brazilian cherry wood floors, granite counter tops, split floor plan, and a huge airconditioned sunroom. Recent updates include a new roof and HVAC in 2025, a new cooktop, refrigerator, and dishwasher in 2024. The exterior was painted in 2024, and the carpet, as well as some light fixtures were also replaced in 2024. Fairfield at Ponte Vedra Beach is known for its outstanding amenities, including a clubhouse with an exercise room, family and adult pools, jacuzzi, sauna, tennis, pickleball and basketball courts, RV/boat parking, playgrounds, and beautifully maintained green spaces perfect for both relaxation and recreation.
Listing Updated : 03-12-2026 at 6:32 PM EDT
Home Details
117 Glen Eagles Ct, Ponte Vedra Beach, FL 32082
Status
Active
MLS #ID
2134671
Price
$995,000
Bedrooms
4
Bathrooms
4
Square Footage
3,070
Acres
0.33
Year
1990
Days on Site
3
Property Type
Residential
Property Sub Type
Single-Family
Price per Sq Ft
$324
Date Listed
Mar 12, 2026
Community Information for 117 Glen Eagles Ct, Ponte Vedra Beach, FL 32082
Address
117 Glen Eagles Ct
State
Florida
Zip Code 32082
Subdivision Fairfield
Utilities
Sewer
Public Sewer
Water Source
Public
Interior
Interior Features
Breakfast Bar, Ceiling Fan(s), Entrance Foyer, Open Floorplan, Pantry, Walk-In Closet(s), Primary Bathroom -Tub with Separate Shower, Split Bedrooms, Breakfast Nook and Guest Suite
Appliances
Disposal, Dishwasher, Electric Cooktop, Electric Oven, ENERGY STAR Qualified Dishwasher, ENERGY STAR Qualified Refrigerator, ENERGY STAR Qualified Dryer, Electric Water Heater and Microwave
Cooling
Central Air, Electric and Multi Units
Fireplace
Yes
# of Fireplaces
1
Exterior
Roof
Shingle
Garage Spaces
2
Foundation
HOA
Has HOA
Yes
Services included
None
HOA fee
$530 Quarterly
Additional Information
Styles
Traditional
Price per Sq Ft
$324
Listing Provided By

DANIELA MCCARTHY, DALTON WADE INC

Source

realMLS, MLS#: 2134671

Comments
Home Worth Check

Interested in 117 Glen Eagles Ct, Ponte Vedra Beach FL, 32082?

By proceeding, you consent to receive calls, texts and voicemails at the number you provided (may be recorded and may be autodialed and use prerecorded and artificial voices), and email, from Home904 about your inquiry and other home-related matters. Msg/data rates may apply. This consent applies even if you are on a do not call list and is not a condition of any purchase.

Location of 117 Glen Eagles Ct, Ponte Vedra Beach, FL 32082

Google Map
Mortgage Calculator
Listing Price
Down Payment
Interest Rate
This beautiful 4 beds 4 baths home is located at 117 Glen Eagles Ct, Ponte Vedra Beach, FL 32082 and is listed for sale at $995,000.00. This home was built in 1990, contains 3070 square feet of living space, and sits on a 0.33 acre lot. This residential home is priced at $324.10 per square foot.

If you'd like to request a tour or more information on 117 Glen Eagles Ct, Ponte Vedra Beach, FL 32082, please call us at 904-595-9249 so that we can assist you in your real estate search. To find homes like 117 Glen Eagles Ct, Ponte Vedra Beach, FL 32082, you can search homes for sale in Ponte Vedra Beach , or visit the neighborhood of Fairfield , or by 32082 . We are here to help when you're ready to contact us!

Schools Near 117 Glen Eagles Ct, Ponte Vedra Beach, FL 32082

Home Details
117 Glen Eagles Ct, Ponte Vedra Beach, FL 32082
Status
Active
MLS #ID
2134671
Price
$995,000
Bedrooms
4
Bathrooms
4
Square Footage
3,070
Acres
0.33
Year
1990
Days on Site
3
Property Type
Residential
Property Sub Type
Single-Family
Price per Sq Ft
$324
Date Listed
Mar 12, 2026
Community Information for 117 Glen Eagles Ct, Ponte Vedra Beach, FL 32082
Address
117 Glen Eagles Ct
State
Florida
Zip Code 32082
Subdivision Fairfield
Utilities
Sewer
Public Sewer
Water Source
Public
Interior
Interior Features
Breakfast Bar, Ceiling Fan(s), Entrance Foyer, Open Floorplan, Pantry, Walk-In Closet(s), Primary Bathroom -Tub with Separate Shower, Split Bedrooms and Breakfast Nook
Appliances
Disposal, Dishwasher, Electric Cooktop, Electric Oven, ENERGY STAR Qualified Dishwasher, ENERGY STAR Qualified Refrigerator, ENERGY STAR Qualified Dryer and Electric Water Heater
Cooling
Central Air and Electric
Fireplace
Yes
# of Fireplaces
1
Exterior
Roof
Shingle
Garage Spaces
2
Foundation
HOA
Has HOA
Yes
Services included
None
HOA fee
$530 Quarterly
Additional Information
Styles
Traditional
Price per Sq Ft
$324
Listing Provided By

DANIELA MCCARTHY, DALTON WADE INC

Source

realMLS, MLS#: 2134671

Comments

Homes Similar to 117 Glen Eagles Ct, Ponte Vedra Beach, FL 32082

Quick Flood Check

Wondering if this property sits in a flood zone? I can verify the address and tell you what it means in plain English.

Copy/paste to message me: “Can you run a flood check on this listing?”

HomePonte Vedra BeachFairfield
Get Your Home’s Real Value — Verified by a Local Expert
Have a top local Realtor give you a FREE Comparative Market Analysis
How We Helped Our Clients
Panel only seen by widget owner
Home904 on FacebookHome904 on Youtube
Company
Home904.com logo

United Real Estate Gallery – Park Ave
United Real Estate Gallery – Park Ave
1832 Park Avenue, Orange Park, FL 32073
First Coast Cities

Home904.com was built to make home searching in Jacksonville and across Northeast Florida clearer, calmer, and more accurate—pairing real-time MLS data with on-the-ground local context so decisions feel grounded, not rushed.

The site is run by Susie Takara, REALTOR®, a Northeast Florida real estate professional with United Real Estate Gallery known for steady communication, strong negotiation, and a relationships-first approach.

Whether you’re comparing communities in Jacksonville, Orange Park, Fleming Island, Middleburg, St. Johns, or Green Cove Springs, Home904 is designed to help you understand how a home and neighborhood will actually function day to day—at your pace, with guidance available when you want it. Home904.com is owned and operated by Susan Takara, LLC


© 2026 Northeast Florida Multiple Listing Service, Inc. All rights reserved. The data relating to real estate for sale on this web site comes in part from the Internet Data Exchange (IDX) program of the Northeast Florida Multiple Listing Service, Inc. Real estate listings held by brokerage firms other than United Real Estate Gallery are marked with the listing broker’s name and detailed information about such listings includes the name of the listing brokers. Data provided is deemed reliable but is not guaranteed.