Back to Search
14508 21 Ave, Starke, FL 32091
14508 21 Ave, Starke, FL 32091
14508 21 Ave, Starke, FL 32091
14508 21 Ave, Starke, FL 32091
14508 21 Ave, Starke, FL 32091

14508 21 Ave Starke, FL 32091

$495,000

ACTIVE UNDER CONTRACT
Beds
4
Baths
3
Sqft
2,315
Acres
6.11
Year
2026
Days on Site
47
Property Type
Residential
Sub Type
Single Family
Per Square Foot
$214
Date Listed
Dec 11, 2025

Description of 14508 21 Ave, Starke, FL 32091

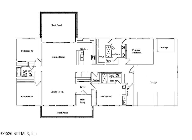
Listing details for 14508 21 Ave, Starke, FL 32091 : Your dream home awaits on over 6 acres—offering privacy, space, and endless possibilities! This stunning new build features 4-bedrooms, 3-bathrooms, and a guest suite. The chef-inspired kitchen shines with an unforgettable walk-in pantry. The combined dining and living room showcases vaulted ceilings, creating an open, airy feel perfect for both everyday living and entertaining. Enjoy a modern split floor plan, stylish finishes throughout, and the freedom to make the property your own with no HOA and plenty of room to grow or expand. Relax and unwind on the front and back porches, making this home the perfect private retreat! Outside, the 3-car garage with over 600 sqft of space is ideal for storing ATVs, equipment, or all your recreational toys. *Property not yet finished and final specs may.
Listing Updated : 01-22-2026 at 11:23 AM EST
Home Details
14508 21 Ave, Starke, FL 32091
Status
Active Under Contract
MLS #ID
2121237
Price
$495,000
Bedrooms
4
Bathrooms
3
Square Footage
2,315
Acres
6.11
Year
2026
Days on Site
47
Property Type
Residential
Property Sub Type
Single-Family
Price per Sq Ft
$214
Date Listed
Dec 11, 2025
Community Information for 14508 21 Ave, Starke, FL 32091
Address
14508 21 Ave
State
Florida
Zip Code 32091
Subdivision Metes & Bounds
Schools
Utilities
Sewer
Septic Tank
Water Source
Well
Interior
Appliances
Dishwasher, Electric Range, Microwave and Refrigerator
Cooling
Central Air
Fireplace
No
Exterior
Roof
Garage Spaces
3
Foundation
HOA
Has HOA
None
Additional Information
Styles
Price per Sq Ft
$214
Listing Provided By

ADRIAN CARKHUFF, RIVER CITY RENTALS AND REALTY

Source

realMLS, MLS#: 2121237

Comments
Home Worth Check

Interested in 14508 21 Ave, Starke FL, 32091?

By proceeding, you consent to receive calls, texts and voicemails at the number you provided (may be recorded and may be autodialed and use prerecorded and artificial voices), and email, from Home904 about your inquiry and other home-related matters. Msg/data rates may apply. This consent applies even if you are on a do not call list and is not a condition of any purchase.

Location of 14508 21 Ave, Starke, FL 32091

Google Map
Mortgage Calculator
Listing Price
Down Payment
Interest Rate
This beautiful 4 beds 3 baths home is located at 14508 21 Ave, Starke, FL 32091 and is listed for sale at $495,000.00. This home was built in 2026, contains 2315 square feet of living space, and sits on a 6.11 acre lot. This residential home is priced at $213.82 per square foot.

If you'd like to request a tour or more information on 14508 21 Ave, Starke, FL 32091, please call us at 904-595-9249 so that we can assist you in your real estate search. To find homes like 14508 21 Ave, Starke, FL 32091, you can search homes for sale in Starke , or visit the neighborhood of Metes & Bounds , or by 32091 . We are here to help when you're ready to contact us!

Schools Near 14508 21 Ave, Starke, FL 32091

Home Details
14508 21 Ave, Starke, FL 32091
Status
Active Under Contract
MLS #ID
2121237
Price
$495,000
Bedrooms
4
Bathrooms
3
Square Footage
2,315
Acres
6.11
Year
2026
Days on Site
47
Property Type
Residential
Property Sub Type
Single-Family
Price per Sq Ft
$214
Date Listed
Dec 11, 2025
Community Information for 14508 21 Ave, Starke, FL 32091
Address
14508 21 Ave
State
Florida
Zip Code 32091
Subdivision Metes & Bounds
Schools
Utilities
Sewer
Septic Tank
Water Source
Well
Interior
Appliances
Dishwasher, Electric Range and Microwave
Cooling
Central Air
Fireplace
No
Exterior
Roof
Garage Spaces
3
Foundation
HOA
Has HOA
None
Additional Information
Styles
Price per Sq Ft
$214
Listing Provided By

ADRIAN CARKHUFF, RIVER CITY RENTALS AND REALTY

Source

realMLS, MLS#: 2121237

Comments

Homes Similar to 14508 21 Ave, Starke, FL 32091

Quick Flood Check

Wondering if this property sits in a flood zone? I can verify the address and tell you what it means in plain English.

Copy/paste to message me: “Can you run a flood check on this listing?”

HomeStarkeMetes & Bounds
Get Your Home’s Real Value — Verified by a Local Expert
Have a top local Realtor give you a FREE Comparative Market Analysis
How We Helped Our Clients
Panel only seen by widget owner
Home904 on FacebookHome904 on Youtube
Company
Home904.com logo

United Real Estate Gallery – Park Ave
United Real Estate Gallery – Park Ave
1832 Park Avenue, Orange Park, FL 32073
First Coast Cities

Home904.com was built to make home searching in Jacksonville and across Northeast Florida clearer, calmer, and more accurate—pairing real-time MLS data with on-the-ground local context so decisions feel grounded, not rushed.

The site is run by Susie Takara, REALTOR®, a Northeast Florida real estate professional with United Real Estate Gallery known for steady communication, strong negotiation, and a relationships-first approach.

Whether you’re comparing communities in Jacksonville, Orange Park, Fleming Island, Middleburg, St. Johns, or Green Cove Springs, Home904 is designed to help you understand how a home and neighborhood will actually function day to day—at your pace, with guidance available when you want it. Home904.com is owned and operated by Susan Takara, LLC


© 2026 Northeast Florida Multiple Listing Service, Inc. All rights reserved. The data relating to real estate for sale on this web site comes in part from the Internet Data Exchange (IDX) program of the Northeast Florida Multiple Listing Service, Inc. Real estate listings held by brokerage firms other than United Real Estate Gallery are marked with the listing broker’s name and detailed information about such listings includes the name of the listing brokers. Data provided is deemed reliable but is not guaranteed.