Open: Sun 10:30 AM - 0:30 PM
$1,499,000
Active
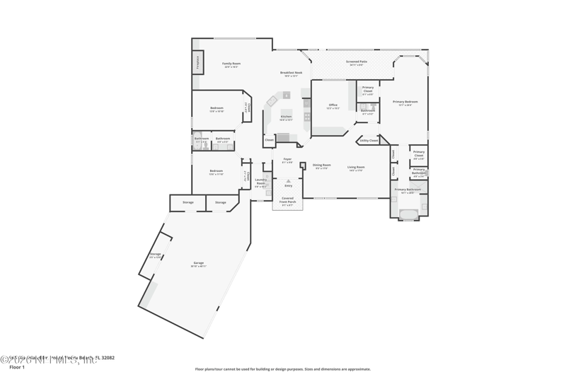
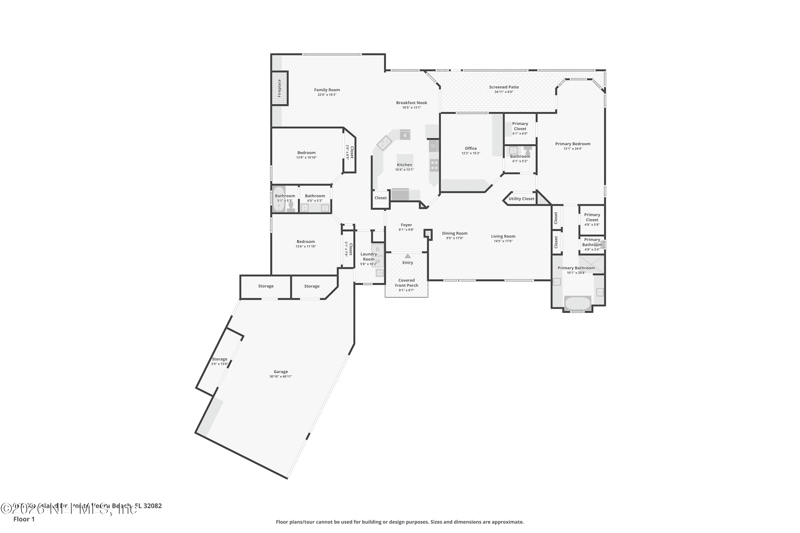
3
Beds
3
Baths
2909
Sqft
0.4
Acres
121 Nandina Cir, Ponte Vedra Beach, FL 32082
MLS#: 2126236






$1,525,000
ACTIVESUZANNE TRAMMELL, PLLC, 904 FINE HOMES
realMLS, MLS#: 2130171


SUZANNE TRAMMELL, PLLC, 904 FINE HOMES
realMLS, MLS#: 2130171

Wondering if this property sits in a flood zone? I can verify the address and tell you what it means in plain English.
Copy/paste to message me: “Can you run a flood check on this listing?”