New - 2 Days Ago
$265,000
Active
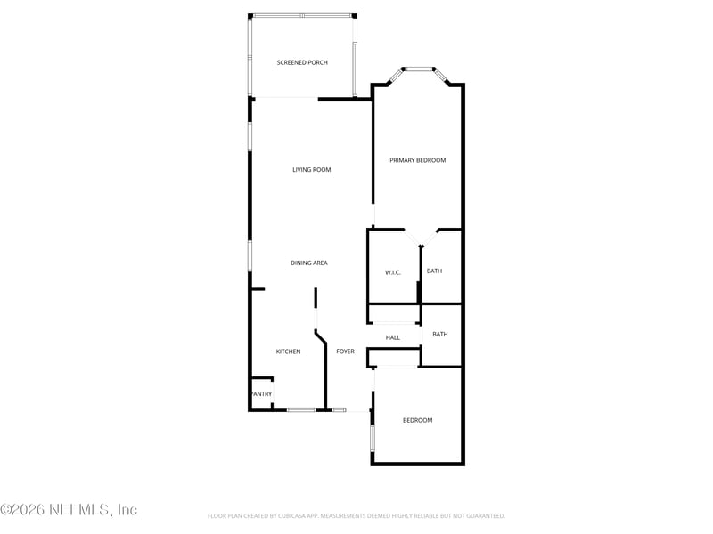
2
Beds
3
Baths
1657
Sqft
0.47
Acres
107 Grey Widgeon Ct, Daytona Beach, FL 32119
MLS#: 2138446






$242,000
ACTIVE UNDER CONTRACTCHRISTIE BEDFORD, CHRISTIE'S INTERNATIONAL REAL ESTATE FIRST COAST
realMLS, MLS#: 2133587


Wondering if this property sits in a flood zone? I can verify the address and tell you what it means in plain English.
Copy/paste to message me: “Can you run a flood check on this listing?”