New - 4 Hours Ago
$384,900
Active
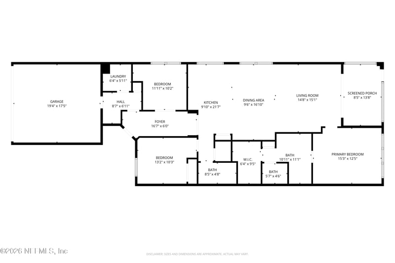
2
Beds
2
Baths
1547
Sqft
0.11
Acres
28 Rock Spring Loop, St Augustine, FL 32095
MLS#: 2130975






$369,000
ACTIVEFRED H CONLEY, KELLER WILLIAMS ST JOHNS
realMLS, MLS#: 2123972


FRED H CONLEY, KELLER WILLIAMS ST JOHNS
realMLS, MLS#: 2123972

Wondering if this property sits in a flood zone? I can verify the address and tell you what it means in plain English.
Copy/paste to message me: “Can you run a flood check on this listing?”