New - 3 Days Ago
$350,000
Active
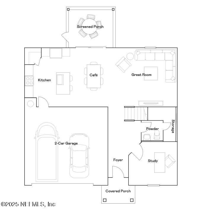
4
Beds
3
Baths
2210
Sqft
0.11
Acres
2436 Falling Star Ln, Green Cove Springs, FL 32043
MLS#: 2134642






$368,999
PENDINGRICHELLE SMART, LENNAR REALTY INC
realMLS, MLS#: 2110206


RICHELLE SMART, LENNAR REALTY INC
realMLS, MLS#: 2110206

Wondering if this property sits in a flood zone? I can verify the address and tell you what it means in plain English.
Copy/paste to message me: “Can you run a flood check on this listing?”