New - 9 Hours Ago
$365,000
Active
3
Beds
2
Baths
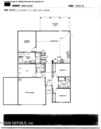
1717
Sqft
0.2
Acres
2640 Windsor Lakes Way, Green Cove Springs, FL 32043
MLS#: 2130857



$359,990
ACTIVENANCY PRUITT, OLYMPUS EXECUTIVE REALTY, INC
realMLS, MLS#: 2130956


NANCY PRUITT, OLYMPUS EXECUTIVE REALTY, INC
realMLS, MLS#: 2130956

Wondering if this property sits in a flood zone? I can verify the address and tell you what it means in plain English.
Copy/paste to message me: “Can you run a flood check on this listing?”