New - 1 Day Ago
$355,000
Active
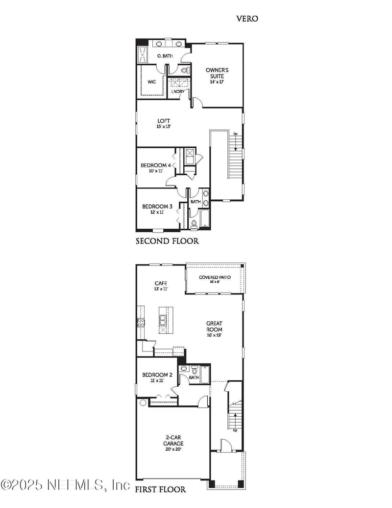
4
Beds
2
Baths
2148
Sqft
0.2
Acres
2299 Willow Springs Dr, Green Cove Springs, FL 32043
MLS#: 2130245



$359,990
ACTIVENANCY PRUITT, OLYMPUS EXECUTIVE REALTY, INC
realMLS, MLS#: 2105136


NANCY PRUITT, OLYMPUS EXECUTIVE REALTY, INC
realMLS, MLS#: 2105136

Wondering if this property sits in a flood zone? I can verify the address and tell you what it means in plain English.
Copy/paste to message me: “Can you run a flood check on this listing?”