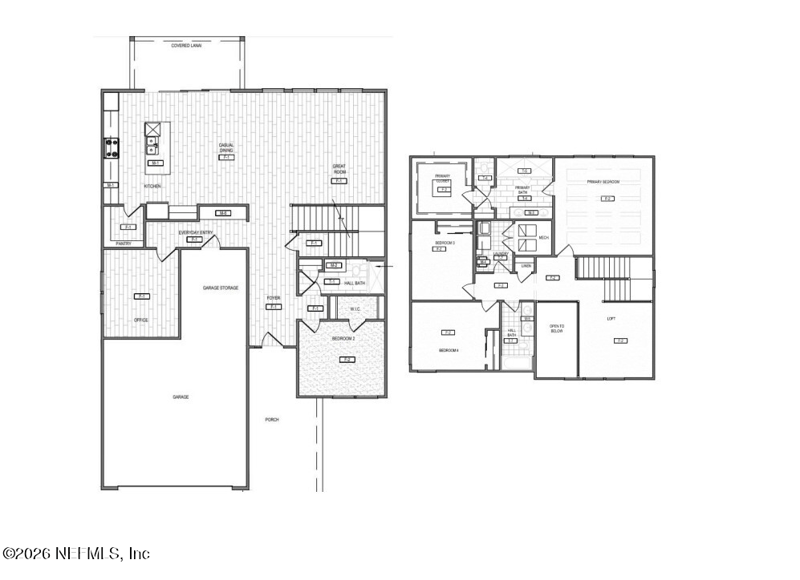
$1,299,000
Active
5
Beds
4
Baths
3805
Sqft
0.21
Acres
134 Bucktail Ave, Ponte Vedra, FL 32081
MLS#: 2129739






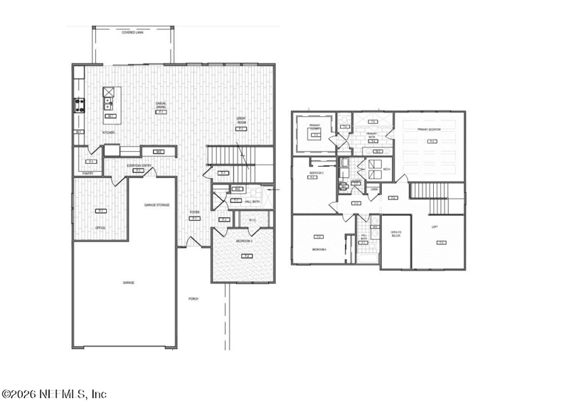
$1,290,000
ACTIVEVICTORIA COONEY, JACKSONVILLE TBI REALTY, LLC
realMLS, MLS#: 2132662


VICTORIA COONEY, JACKSONVILLE TBI REALTY, LLC
realMLS, MLS#: 2132662

Wondering if this property sits in a flood zone? I can verify the address and tell you what it means in plain English.
Copy/paste to message me: “Can you run a flood check on this listing?”