New - 2 Days Ago
$649,000
Active
2
Beds
2
Baths
1724
Sqft
0.13
Acres
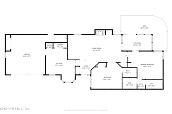
45 Walkers Ridge Dr, Ponte Vedra Beach, FL 32082
MLS#: 2134979
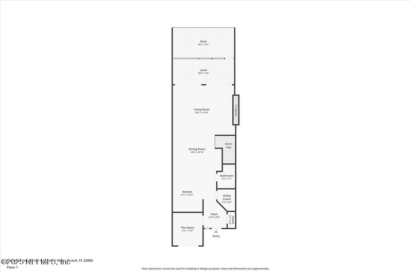
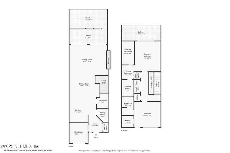
$670,000
ACTIVEGWINN VOLEN, KELLER WILLIAMS REALTY ATLANTIC PARTNERS
realMLS, MLS#: 2107990


GWINN VOLEN, KELLER WILLIAMS REALTY ATLANTIC PARTNERS
realMLS, MLS#: 2107990

Wondering if this property sits in a flood zone? I can verify the address and tell you what it means in plain English.
Copy/paste to message me: “Can you run a flood check on this listing?”