New - 30 Mins Ago
$825,000
Active
2
Beds
2
Baths
1396
Sqft
--
Acres
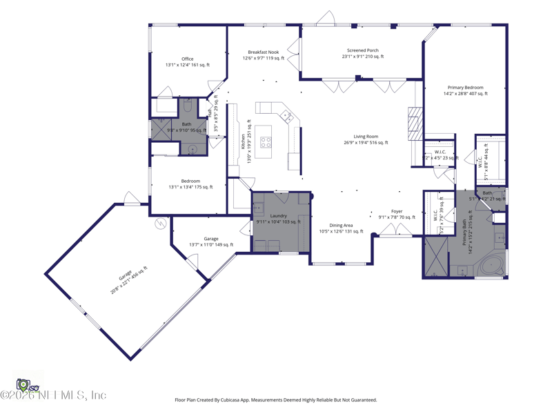
109 Caribe Vista Way, St Augustine, FL 32080
MLS#: 2136962






$799,000
ACTIVE UNDER CONTRACTChristine Margaret Matthaei, BERKSHIRE HATHAWAY HOMESERVICES FLORIDA NETWORK REALTY
realMLS, MLS#: 2133353


Wondering if this property sits in a flood zone? I can verify the address and tell you what it means in plain English.
Copy/paste to message me: “Can you run a flood check on this listing?”