$1,225,000
Active
3
Beds
3
Baths
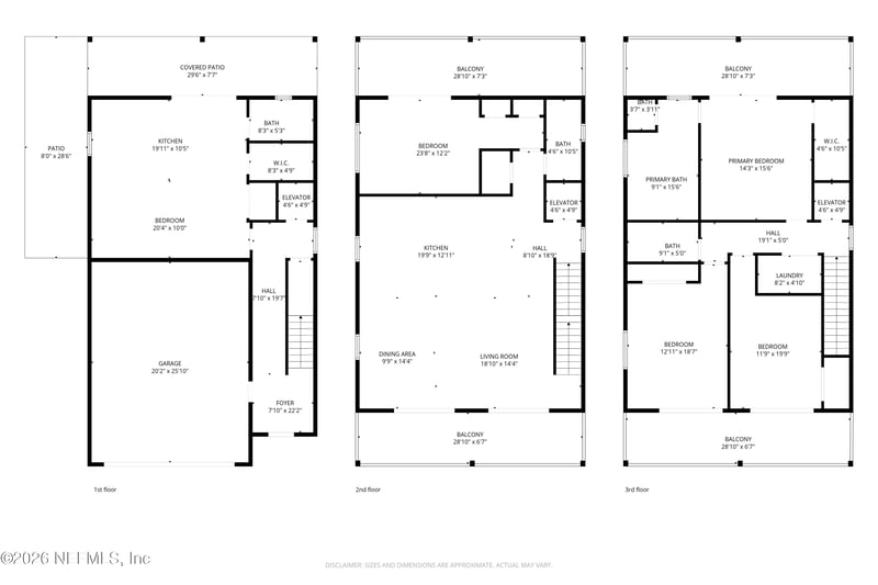
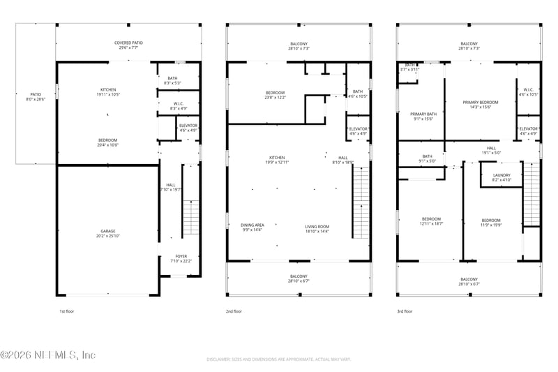
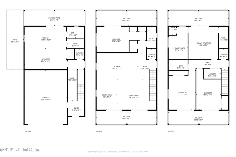
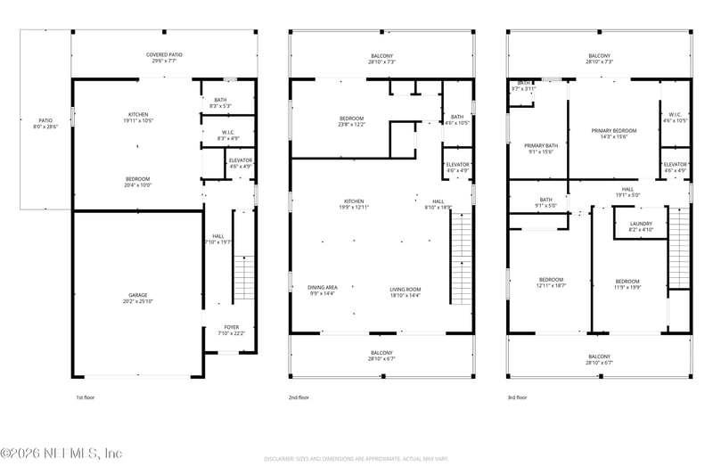
1870
Sqft
--
Acres
33 Comares Ave #305 / BOATSLIPS 8 & 16, St Augustine, FL 32080
MLS#: 2110900






$1,239,800
ACTIVEALEXIS McDANIEL, EXP REALTY LLC
realMLS, MLS#: 2108325


ALEXIS McDANIEL, EXP REALTY LLC
realMLS, MLS#: 2108325

Wondering if this property sits in a flood zone? I can verify the address and tell you what it means in plain English.
Copy/paste to message me: “Can you run a flood check on this listing?”