Back to Search
592 Outlook Dr, Ponte Vedra, FL 32081
592 Outlook Dr, Ponte Vedra, FL 32081
592 Outlook Dr, Ponte Vedra, FL 32081
592 Outlook Dr, Ponte Vedra, FL 32081
592 Outlook Dr, Ponte Vedra, FL 32081
592 Outlook Dr, Ponte Vedra, FL 32081
592 Outlook Dr, Ponte Vedra, FL 32081

592 Outlook Dr Ponte Vedra, FL 32081

$1,100,000

ACTIVE
Beds
4
Baths
4
Sqft
3,376
Acres
0.26
Year
2018
Days on Site
1
Property Type
Residential
Sub Type
Single Family
Per Square Foot
$326
Date Listed
Mar 24, 2026

Description of 592 Outlook Dr, Ponte Vedra, FL 32081

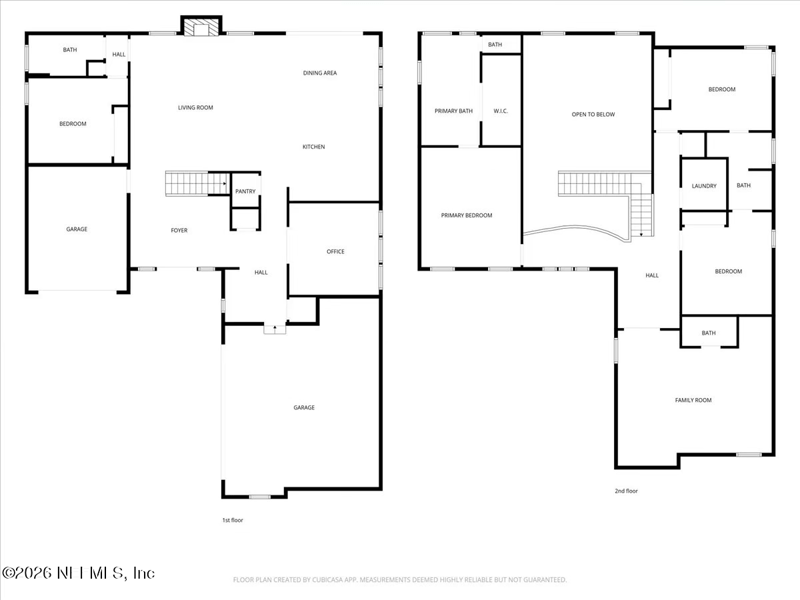
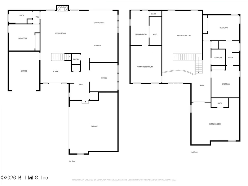
Listing details for 592 Outlook Dr, Ponte Vedra, FL 32081 : Welcome to 592 Outlook Drive, located in the highly sought after Twenty Mile community of Nocatee in The Outlook. This beautifully designed ICI Homes Victoria floor plan offers a perfect blend of modern style, functional space, and a peaceful water view. Inside, the open-concept layout is filled with natural light, with spacious living and dining areas that flow seamlessly into the gourmet kitchen--ideal for both everyday living and entertaining. Large windows capture serene water views, creating a calm and inviting atmosphere throughout the main living space. This thoughtfully designed home features 4 bedrooms, a dedicated office, and a spacious bonus room, providing flexibility for work, guests, or play. The upstairs primary suite offers a private retreat, separate from the main living areas, with ample space and a well-appointed bathroom designed for comfort. Located in one of Nocatee's most desirable neighborhoods, Twenty Mile - The Outlook offers a quiet, established setting with convenient access to top-rated schools, scenic trails, parks, and all of Nocatee's award-winning amenities. Shopping, dining, and the beaches are just minutes away. With its versatile floor plan, beautiful water views, and prime location, 592 Outlook Drive delivers the best of Nocatee living.
Listing Updated : 03-26-2026 at 9:00 AM EDT
Listing Provided By

SARAH A SCHWARTZ, REALTY ONE GROUP ELEVATE

Source

realMLS, MLS#: 2136500

Home Worth Check

Interested in 592 Outlook Dr, Ponte Vedra FL, 32081?

By proceeding, you consent to receive calls, texts and voicemails at the number you provided (may be recorded and may be autodialed and use prerecorded and artificial voices), and email, from Home904 about your inquiry and other home-related matters. Msg/data rates may apply. This consent applies even if you are on a do not call list and is not a condition of any purchase.

Location of 592 Outlook Dr, Ponte Vedra, FL 32081

Google Map
Mortgage Calculator
Listing Price
Down Payment
Interest Rate
This beautiful 4 beds 4 baths home is located at 592 Outlook Dr, Ponte Vedra, FL 32081 and is listed for sale at $1,100,000.00. This home was built in 2018, contains 3376 square feet of living space, and sits on a 0.26 acre lot. This residential home is priced at $325.83 per square foot.

If you'd like to request a tour or more information on 592 Outlook Dr, Ponte Vedra, FL 32081, please call us at 904-595-9249 so that we can assist you in your real estate search. To find homes like 592 Outlook Dr, Ponte Vedra, FL 32081, you can search homes for sale in Ponte Vedra , or visit the neighborhood of The Outlook At Twenty Mile , or by 32081 . We are here to help when you're ready to contact us!

Schools Near 592 Outlook Dr, Ponte Vedra, FL 32081

Homes Similar to 592 Outlook Dr, Ponte Vedra, FL 32081

Quick Flood Check

Wondering if this property sits in a flood zone? I can verify the address and tell you what it means in plain English.

Copy/paste to message me: “Can you run a flood check on this listing?”

HomePonte VedraThe Outlook At Twenty Mile
Get Your Home’s Real Value — Verified by a Local Expert
Have a top local Realtor give you a FREE Comparative Market Analysis
How We Helped Our Clients
Panel only seen by widget owner
Home904 on FacebookHome904 on Youtube
Company
Home904.com logo

United Real Estate Gallery – Park Ave
United Real Estate Gallery – Park Ave
1832 Park Avenue, Orange Park, FL 32073
First Coast Cities

Home904.com was built to make home searching in Jacksonville and across Northeast Florida clearer, calmer, and more accurate—pairing real-time MLS data with on-the-ground local context so decisions feel grounded, not rushed.

The site is run by Susie Takara, REALTOR®, a Northeast Florida real estate professional with United Real Estate Gallery known for steady communication, strong negotiation, and a relationships-first approach.

Whether you’re comparing communities in Jacksonville, Orange Park, Fleming Island, Middleburg, St. Johns, or Green Cove Springs, Home904 is designed to help you understand how a home and neighborhood will actually function day to day—at your pace, with guidance available when you want it. Home904.com is owned and operated by Susan Takara, LLC


© 2026 Northeast Florida Multiple Listing Service, Inc. All rights reserved. The data relating to real estate for sale on this web site comes in part from the Internet Data Exchange (IDX) program of the Northeast Florida Multiple Listing Service, Inc. Real estate listings held by brokerage firms other than United Real Estate Gallery are marked with the listing broker’s name and detailed information about such listings includes the name of the listing brokers. Data provided is deemed reliable but is not guaranteed.