New - 3 Days Ago
$1,050,000
Active
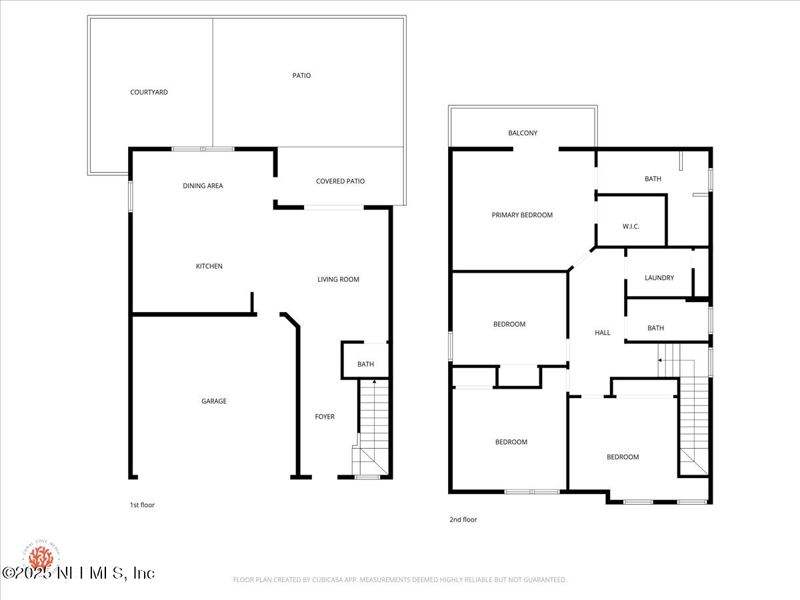
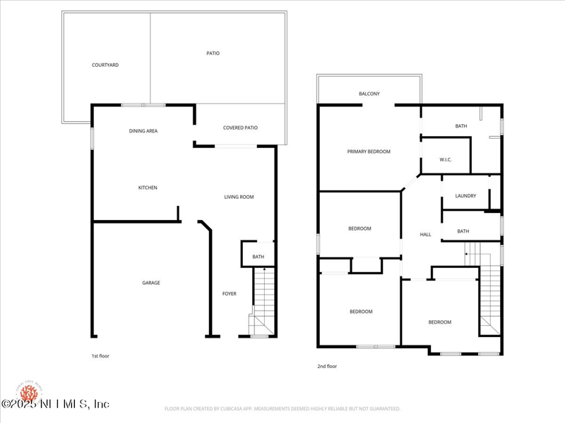
4
Beds
3
Baths
2600
Sqft
0.14
Acres
562 14th Ave, Jacksonville Beach, FL 32250
MLS#: 2133447






$1,100,000
ACTIVESHAWN ONEILL, JPAR CITY AND BEACH
realMLS, MLS#: 2122421


SHAWN ONEILL, JPAR CITY AND BEACH
realMLS, MLS#: 2122421

Wondering if this property sits in a flood zone? I can verify the address and tell you what it means in plain English.
Copy/paste to message me: “Can you run a flood check on this listing?”