New - 5 Hours Ago
$358,000
Active
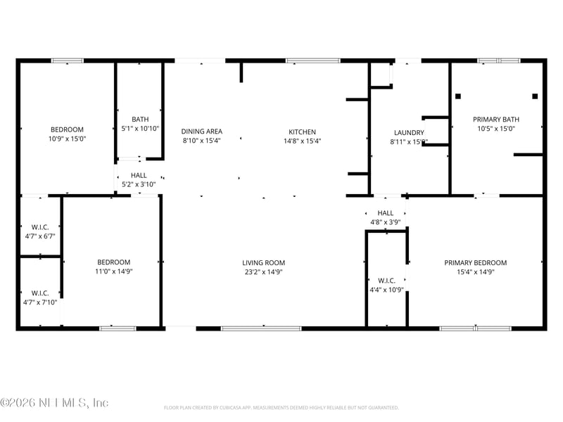
3
Beds
2
Baths
1396
Sqft
0.23
Acres
203 Walburg St, Green Cove Springs, FL 32043
MLS#: 2134367






$395,000
ACTIVEIRIS KING, THE WILKINS WAY
realMLS, MLS#: 2134291


IRIS KING, THE WILKINS WAY
realMLS, MLS#: 2134291

Wondering if this property sits in a flood zone? I can verify the address and tell you what it means in plain English.
Copy/paste to message me: “Can you run a flood check on this listing?”