Back to Search
10902 Java Dr, Jacksonville, FL 32246
10902 Java Dr, Jacksonville, FL 32246
10902 Java Dr, Jacksonville, FL 32246
10902 Java Dr, Jacksonville, FL 32246
10902 Java Dr, Jacksonville, FL 32246
10902 Java Dr, Jacksonville, FL 32246
10902 Java Dr, Jacksonville, FL 32246

10902 Java Dr Jacksonville, FL 32246

$320,000

ACTIVE
Beds
4
Baths
3
Sqft
1,412
Acres
0.36
Year
1960
Days on Site
31
Property Type
Residential
Sub Type
Single Family
Per Square Foot
$227
Date Listed
Jan 29, 2026

Description of 10902 Java Dr, Jacksonville, FL 32246

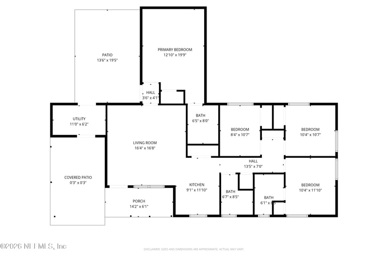
Listing details for 10902 Java Dr, Jacksonville, FL 32246 : Step inside this updated home featuring quartz countertops, stainless steel appliances, white shaker cabinets, pantry, backsplash, and a Lazy Susan cabinet. Systems upgrades include HVAC 2023, roof 2023, electrical was updated in 2022, plumbing in 2023 and water heater 2024. The fully fenced backyard with concrete grilling pad is perfect for cookouts or outdoor fun. Move-in ready and full of functional upgrades—don't miss out on this opportunity to make this one yours today!
Listing Updated : 02-23-2026 at 02:00 PM EST
Home Details
10902 Java Dr, Jacksonville, FL 32246
Status
Active
MLS #ID
2127660
Price
$320,000
Bedrooms
4
Bathrooms
3
Square Footage
1,412
Acres
0.36
Year
1960
Days on Site
31
Property Type
Residential
Property Sub Type
Single-Family
Price per Sq Ft
$227
Date Listed
Jan 29, 2026
Community Information for 10902 Java Dr, Jacksonville, FL 32246
Address
10902 Java Dr
State
Florida
Zip Code 32246
County Duval
Subdivision Sandalwood
Schools
Utilities
Sewer
Public Sewer
Water Source
Public
Interior
Interior Features
Open Floorplan
Appliances
Electric Oven, Electric Range, Electric Water Heater and Refrigerator
Cooling
Central Air
Fireplace
No
Exterior
Roof
Shingle
Foundation
HOA
Has HOA
None
Additional Information
Styles
Price per Sq Ft
$227
Listing Provided By

ELAINE SAMAAN, DOGWOOD REALTY FLORIDA

Source

realMLS, MLS#: 2127660

Comments
Home Worth Check

Interested in 10902 Java Dr, Jacksonville FL, 32246?

By proceeding, you consent to receive calls, texts and voicemails at the number you provided (may be recorded and may be autodialed and use prerecorded and artificial voices), and email, from Home904 (Susan Takara, LLC) about your inquiry and other home-related matters. Msg/data rates may apply. This consent applies even if you are on a do not call list and is not a condition of any purchase.

Location of 10902 Java Dr, Jacksonville, FL 32246

Google Map
Mortgage Calculator
Listing Price
Down Payment
Interest Rate
This beautiful 4 beds 3 baths home is located at 10902 Java Dr, Jacksonville, FL 32246 and is listed for sale at $320,000.00. This home was built in 1960, contains 1412 square feet of living space, and sits on a 0.36 acre lot. This residential home is priced at $226.63 per square foot.

If you'd like to request a tour or more information on 10902 Java Dr, Jacksonville, FL 32246, please call us at 904-595-9249 so that we can assist you in your real estate search. To find homes like 10902 Java Dr, Jacksonville, FL 32246, you can search homes for sale in Jacksonville , or visit the neighborhood of Sandalwood , or by 32246 . We are here to help when you're ready to contact us!

Schools Near 10902 Java Dr, Jacksonville, FL 32246

Home Details
10902 Java Dr, Jacksonville, FL 32246
Status
Active
MLS #ID
2127660
Price
$320,000
Bedrooms
4
Bathrooms
3
Square Footage
1,412
Acres
0.36
Year
1960
Days on Site
31
Property Type
Residential
Property Sub Type
Single-Family
Price per Sq Ft
$227
Date Listed
Jan 29, 2026
Community Information for 10902 Java Dr, Jacksonville, FL 32246
Address
10902 Java Dr
State
Florida
Zip Code 32246
County Duval
Subdivision Sandalwood
Schools
Utilities
Sewer
Public Sewer
Water Source
Public
Interior
Interior Features
Open Floorplan
Appliances
Electric Oven, Electric Range and Electric Water Heater
Cooling
Central Air
Fireplace
No
Exterior
Roof
Shingle
Foundation
HOA
Has HOA
None
Additional Information
Styles
Price per Sq Ft
$227
Listing Provided By

ELAINE SAMAAN, DOGWOOD REALTY FLORIDA

Source

realMLS, MLS#: 2127660

Comments

Homes Similar to 10902 Java Dr, Jacksonville, FL 32246

Related Blogs
Quick Flood Check

Wondering if this property sits in a flood zone? I can verify the address and tell you what it means in plain English.

Copy/paste to message me: “Can you run a flood check on this listing?”

HomeJacksonvilleSandalwood
Get Your Home’s Real Value — Verified by a Local Expert
Have a top local Realtor give you a FREE Comparative Market Analysis
How We Helped Our Clients
Panel only seen by widget owner
Raleigh Realty HomesRaleigh Realty Homes
Company
Home904.com logo

United Real Estate Gallery – Park Ave
United Real Estate Gallery – Park Ave
1832 Park Avenue, Orange Park, FL 32073
First Coast Cities

Home904.com was built to make home searching in Jacksonville and across Northeast Florida clearer, calmer, and more accurate—pairing real-time MLS data with on-the-ground local context so decisions feel grounded, not rushed.

The site is run by Susie Takara, REALTOR®, a Northeast Florida real estate professional with United Real Estate Gallery known for steady communication, strong negotiation, and a relationships-first approach.

Whether you’re comparing communities in Jacksonville, Orange Park, Fleming Island, Middleburg, St. Johns, or Green Cove Springs, Home904 is designed to help you understand how a home and neighborhood will actually function day to day—at your pace, with guidance available when you want it. Home904.com is owned and operated by Susan Takara, LLC


© 2026 Northeast Florida Multiple Listing Service, Inc. All rights reserved. The data relating to real estate for sale on this web site comes in part from the Internet Data Exchange (IDX) program of the Northeast Florida Multiple Listing Service, Inc. Real estate listings held by brokerage firms other than United Real Estate Gallery are marked with the listing broker’s name and detailed information about such listings includes the name of the listing brokers. Data provided is deemed reliable but is not guaranteed.