New - 4 Days Ago
$849,000
Active
4
Beds
3
Baths
3047
Sqft
0.22
Acres
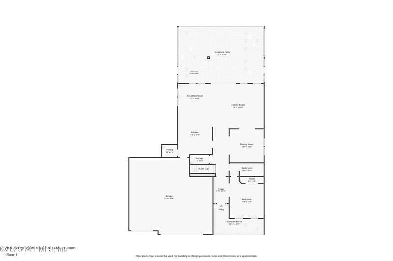
234 Majestic Eagle Dr, Ponte Vedra, FL 32081
MLS#: 2128382
$879,000
ACTIVE UNDER CONTRACTCLAIR CORBETT, WATSON REALTY CORP
realMLS, MLS#: 2120559


CLAIR CORBETT, WATSON REALTY CORP
realMLS, MLS#: 2120559

Wondering if this property sits in a flood zone? I can verify the address and tell you what it means in plain English.
Copy/paste to message me: “Can you run a flood check on this listing?”