Open: Sat 12:00 PM - 3:00 PM
$736,900
Active
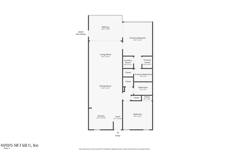
3
Beds
3
Baths
2041
Sqft
0.14
Acres
396 Sargasso St, Fernandina Beach, FL 32034
MLS#: 2130403
$699,900
ACTIVEPETER M PURKO, SUMMER HOUSE REALTY
realMLS, MLS#: 2119775


PETER M PURKO, SUMMER HOUSE REALTY
realMLS, MLS#: 2119775

Wondering if this property sits in a flood zone? I can verify the address and tell you what it means in plain English.
Copy/paste to message me: “Can you run a flood check on this listing?”