Back to Search
4582 Coastal Hw, St Augustine, FL 32084
4582 Coastal Hw, St Augustine, FL 32084 3D Tour
4582 Coastal Hw, St Augustine, FL 32084 Explore 3D Tour
4582 Coastal Hw, St Augustine, FL 32084
4582 Coastal Hw, St Augustine, FL 32084
4582 Coastal Hw, St Augustine, FL 32084
4582 Coastal Hw, St Augustine, FL 32084

4582 Coastal Hw St Augustine, FL 32084

$2,200,000

ACTIVE
Beds
4
Baths
5
Sqft
2,974
Acres
0.43
Year
2002
Days on Site
92
Property Type
Residential
Sub Type
Single Family
Per Square Foot
$740
Date Listed
Mar 11, 2025

Description of 4582 Coastal Hw, St Augustine, FL 32084

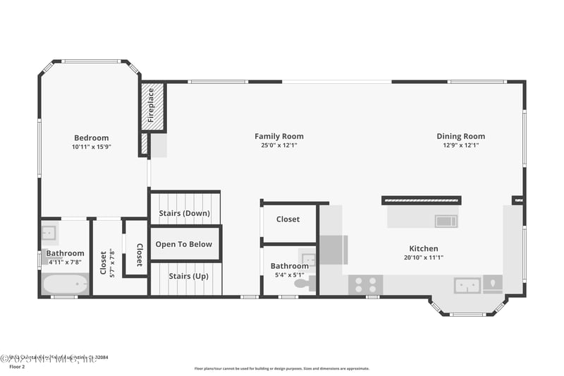
Listing details for 4582 Coastal Hw, St Augustine, FL 32084 : Oceanfront Luxury Home in Vilano Beach, St. Augustine, FL - Fully Furnished & Tesla Included 4582 Coastal Highway, St. Augustine, FL 32084 Experience the ultimate in oceanfront living with this fully furnished and move-in ready home in Vilano Beach, St. Augustine, Florida. As a unique bonus, a 2018 Tesla Model S 100D is included with a full-price offer, making this a truly turnkey opportunity for those seeking a luxury lifestyle by the sea. Whether you're looking for a second home, a peaceful vacation retreat, or a full-time residence, this stunning property offers everything you need to start living the coastal dream. 4582 Coastal Highway sits directly on the sands of Vilano Beach, offering panoramic views of the Atlantic Ocean and endless opportunities to enjoy the beachfront lifestyle. Recently updated with Rhino Shield exterior coating and epoxy-coated garage floors, this home combines durability, low maintenance, and coastal elegance. The property also offers the flexibility to add a future elevator, ensuring long-term comfort and accessibility for years to come. Wake up to the sound of waves and enjoy your morning walk on the beach just outside your door. Take in the stunning Atlantic sunrises or simply relax and unwind with the ocean breezes that make coastal living so special. For nature lovers, the nearby Guana Tolomato Matanzas National Estuarine Research Reserve offers a sanctuary for kayaking, hiking, and wildlife watching, while historic St. Augustine, with its renowned dining, shopping, and cultural attractions, is just a short drive away. Inside, the lower level of the home offers a spacious, versatile area perfect for entertaining guests, creating a private guest retreat, or establishing a home office. This level also features a full bathroom and a well-designed laundry room for added convenience. On the second level, the open-concept kitchen features abundant cabinetry and flows seamlessly into the dining and living areas, which are framed by sweeping ocean views. A guest bedroom with a private bathroom completes this floor, offering comfort and privacy for visitors. The third floor is a private sanctuary, with a primary suite that offers sweeping ocean views and the soothing sound of waves crashing against the shore. The luxurious en-suite bathroom provides a spa-like experience, with ample storage and high-end finishes. An additional ocean-view guest suite and a cozy sitting area with an electric fireplace create the perfect retreat to unwind and enjoy the breathtaking water views. Every level of this home has been thoughtfully designed to capture the essence of oceanfront living. Whether you're enjoying your morning coffee while watching dolphins play in the surf or hosting friends for sunset cocktails with the sea as your backdrop, this home is the perfect place to embrace the laid-back coastal lifestyle. 4582 Coastal Highway offers not only a prime location on the shores of Vilano Beach but also the luxury and convenience of turnkey ownership. With a fully furnished home, a Tesla Model S 100D included in the full-price offer, and a location that offers both peace and proximity to the culture and charm of historic St. Augustine, this property is a rare find. Oceanfront | Fully Furnished | Elevator-Ready | 2018 Tesla Model S 100D Included | Move-In Ready Serving buyers relocating to St. Augustine, Florida.
Listing Updated : 01-22-2026 at 04:07 PM EST
Home Details
4582 Coastal Hw, St Augustine, FL 32084
Status
Active
MLS #ID
2074979
Price
$2,200,000
Bedrooms
4
Bathrooms
5
Square Footage
2,974
Acres
0.43
Year
2002
Days on Site
92
Property Type
Residential
Property Sub Type
Single-Family
Price per Sq Ft
$740
Date Listed
Mar 11, 2025
Community Information for 4582 Coastal Hw, St Augustine, FL 32084
Address
4582 Coastal Hw
State
Florida
Zip Code 32084
Subdivision Kingston Dunes
Schools
Utilities
Water Source
Public
Interior
Interior Features
Breakfast Bar, Built-in Features, Ceiling Fan(s), Central Vacuum, Entrance Foyer, Eat-in Kitchen, Open Floorplan, Walk-In Closet(s) and Primary Bathroom -Tub with Separate Shower
Appliances
Dryer, Disposal, Dishwasher, Electric Water Heater, Ice Maker, Microwave, Refrigerator, Washer and Water Softener Owned
Cooling
Central Air
Fireplace
Yes
# of Fireplaces
2
Exterior
Exterior
Balcony
Roof
Shingle
Garage Spaces
2
Foundation
HOA
Has HOA
Yes
Services included
None
HOA fee
$240 Monthly
Additional Information
Styles
Price per Sq Ft
$740
Listing Provided By

Bobbie Jean Demunck, COLDWELL BANKER VANGUARD REALTY

Source

realMLS, MLS#: 2074979

Comments
Home Worth Check

Interested in 4582 Coastal Hw, St Augustine FL, 32084?

By proceeding, you consent to receive calls, texts and voicemails at the number you provided (may be recorded and may be autodialed and use prerecorded and artificial voices), and email, from Home904 (Susan Takara, LLC) about your inquiry and other home-related matters. Msg/data rates may apply. This consent applies even if you are on a do not call list and is not a condition of any purchase.

Location of 4582 Coastal Hw, St Augustine, FL 32084

Google Map
Mortgage Calculator
Listing Price
Down Payment
Interest Rate
This beautiful 4 beds 5 baths home is located at 4582 Coastal Hw, St Augustine, FL 32084 and is listed for sale at $2,200,000.00. This home was built in 2002, contains 2974 square feet of living space, and sits on a 0.43 acre lot. This residential home is priced at $739.74 per square foot.

If you'd like to request a tour or more information on 4582 Coastal Hw, St Augustine, FL 32084, please call us at 904-595-9249 so that we can assist you in your real estate search. To find homes like 4582 Coastal Hw, St Augustine, FL 32084, you can search homes for sale in St Augustine , or visit the neighborhood of Kingston Dunes , or by 32084 . We are here to help when you're ready to contact us!

Schools Near 4582 Coastal Hw, St Augustine, FL 32084

Home Details
4582 Coastal Hw, St Augustine, FL 32084
Status
Active
MLS #ID
2074979
Price
$2,200,000
Bedrooms
4
Bathrooms
5
Square Footage
2,974
Acres
0.43
Year
2002
Days on Site
92
Property Type
Residential
Property Sub Type
Single-Family
Price per Sq Ft
$740
Date Listed
Mar 11, 2025
Community Information for 4582 Coastal Hw, St Augustine, FL 32084
Address
4582 Coastal Hw
State
Florida
Zip Code 32084
Subdivision Kingston Dunes
Schools
Utilities
Water Source
Public
Interior
Interior Features
Breakfast Bar, Built-in Features, Ceiling Fan(s), Central Vacuum, Entrance Foyer, Eat-in Kitchen, Open Floorplan and Walk-In Closet(s)
Appliances
Dryer, Disposal, Dishwasher, Electric Water Heater, Ice Maker, Microwave, Refrigerator and Washer
Cooling
Central Air
Fireplace
Yes
# of Fireplaces
2
Exterior
Exterior
Balcony
Roof
Shingle
Garage Spaces
2
Foundation
HOA
Has HOA
Yes
Services included
None
HOA fee
$240 Monthly
Additional Information
Styles
Price per Sq Ft
$740
Listing Provided By

Bobbie Jean Demunck, COLDWELL BANKER VANGUARD REALTY

Source

realMLS, MLS#: 2074979

Comments

Homes Similar to 4582 Coastal Hw, St Augustine, FL 32084

Quick Flood Check

Wondering if this property sits in a flood zone? I can verify the address and tell you what it means in plain English.

Copy/paste to message me: “Can you run a flood check on this listing?”

HomeSt AugustineKingston Dunes
Get Your Home’s Real Value — Verified by a Local Expert
Have a top local Realtor give you a FREE Comparative Market Analysis
How We Helped Our Clients
Panel only seen by widget owner
Raleigh Realty HomesRaleigh Realty Homes
Company
Home904.com logo

United Real Estate Gallery – Park Ave
United Real Estate Gallery – Park Ave
1832 Park Avenue, Orange Park, FL 32073
First Coast Cities

Home904.com was built to make home searching in Jacksonville and across Northeast Florida clearer, calmer, and more accurate—pairing real-time MLS data with on-the-ground local context so decisions feel grounded, not rushed.

The site is run by Susie Takara, REALTOR®, a Northeast Florida real estate professional with United Real Estate Gallery known for steady communication, strong negotiation, and a relationships-first approach.

Whether you’re comparing communities in Jacksonville, Orange Park, Fleming Island, Middleburg, St. Johns, or Green Cove Springs, Home904 is designed to help you understand how a home and neighborhood will actually function day to day—at your pace, with guidance available when you want it. Home904.com is owned and operated by Susan Takara, LLC


© 2026 Northeast Florida Multiple Listing Service, Inc. All rights reserved. The data relating to real estate for sale on this web site comes in part from the Internet Data Exchange (IDX) program of the Northeast Florida Multiple Listing Service, Inc. Real estate listings held by brokerage firms other than United Real Estate Gallery are marked with the listing broker’s name and detailed information about such listings includes the name of the listing brokers. Data provided is deemed reliable but is not guaranteed.