New - 2 Days Ago
$995,000
Active
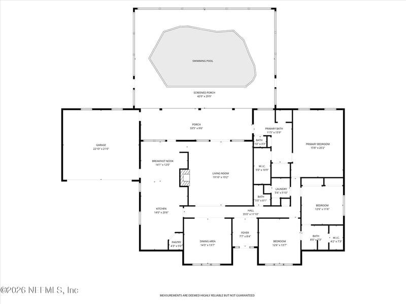
4
Beds
4
Baths
3070
Sqft
0.33
Acres
117 Glen Eagles Ct, Ponte Vedra Beach, FL 32082
MLS#: 2134671






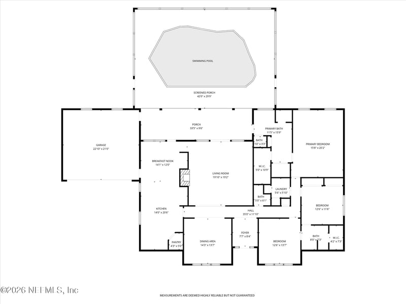
$975,000
ACTIVEGREG URMANN, BERKSHIRE HATHAWAY HOMESERVICES FLORIDA NETWORK REALTY
realMLS, MLS#: 2133762


GREG URMANN, BERKSHIRE HATHAWAY HOMESERVICES FLORIDA NETWORK REALTY
realMLS, MLS#: 2133762

Wondering if this property sits in a flood zone? I can verify the address and tell you what it means in plain English.
Copy/paste to message me: “Can you run a flood check on this listing?”