Back to Search
11707 Village Ln, Jacksonville, FL 32223
11707 Village Ln, Jacksonville, FL 32223 3D Tour
11707 Village Ln, Jacksonville, FL 32223 Explore 3D Tour
11707 Village Ln, Jacksonville, FL 32223
11707 Village Ln, Jacksonville, FL 32223
11707 Village Ln, Jacksonville, FL 32223
11707 Village Ln, Jacksonville, FL 32223

11707 Village Ln Jacksonville, FL 32223

$495,000

ACTIVE
Beds
3
Baths
2
Sqft
2,106
Acres
0.56
Year
1971
Days on Site
92
Property Type
Residential
Sub Type
Single Family
Per Square Foot
$235
Date Listed
Jun 30, 2025

Description of 11707 Village Ln, Jacksonville, FL 32223

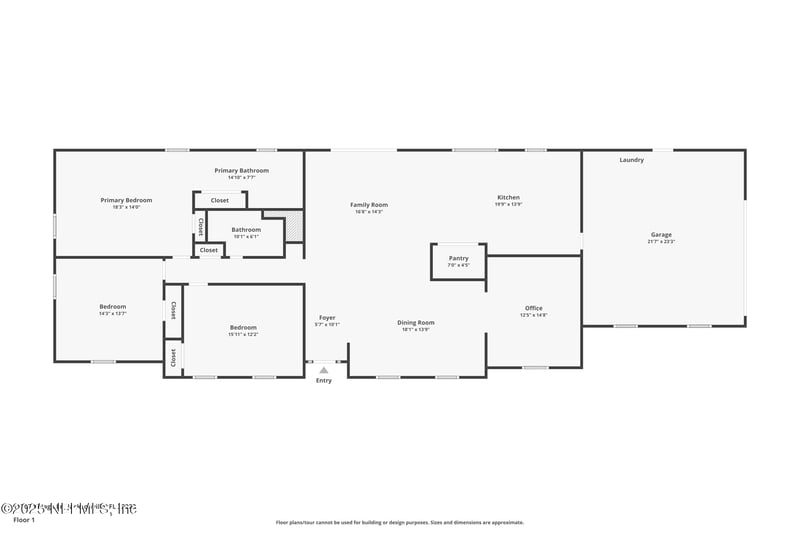
Listing details for 11707 Village Ln, Jacksonville, FL 32223 : ✨ Renovated Mandarin Gem - Half-Acre Lot, No HOA! ✨ Short Sale Welcome to 11707 Village Lane in the heart of Mandarin—one of Jacksonville's most sought-after neighborhoods. This completely updated 3 bedroom, 2 bath, 2,106 sq ft home sits on a rare 0.56-acre lot with no HOA or CDD fees, giving you the freedom to enjoy true Florida living. 💡 Why You'll Love It: This is the rare Mandarin home that checks all the boxes: large lot, modern updates, and unbeatable location. With low inventory in 32223, don't miss this chance to own a turnkey property with room to grow. 📍 Schedule your private showing today and experience why Mandarin is one of Jacksonville's most desirable neighborhoods! =9 Features & Highlights: Newly Renovated Interior - modern finishes, fresh paint, updated flooring, and move-in ready condition. Chef's Kitchen - quartz countertops, stainless steel appliances, white shaker cabinets, and plenty of prep/storage space. Spacious Layout - open concept living + dining, perfect for entertaining. Primary Suite - large owner's retreat with walk-in closet and updated ensuite bath. Outdoor Oasis - oversized fenced backyard with mature oak trees; space for a pool, boat/RV parking, or outdoor entertaining. No HOA - bring your toys, pets, and projects with no restrictions. =9 Location: Prime Mandarin location (32223) - close to top-rated schools, shopping, dining, and St. Johns River access. Easy commute to Downtown Jacksonville, NAS JAX, and the Beaches.
Listing Updated : 01-22-2026 at 04:10 PM EST
Home Details
11707 Village Ln, Jacksonville, FL 32223
Status
Active
MLS #ID
2096116
Price
$495,000
Bedrooms
3
Bathrooms
2
Square Footage
2,106
Acres
0.56
Year
1971
Days on Site
92
Property Type
Residential
Property Sub Type
Single-Family
Price per Sq Ft
$235
Date Listed
Jun 30, 2025
Community Information for 11707 Village Ln, Jacksonville, FL 32223
Address
11707 Village Ln
State
Florida
Zip Code 32223
County Duval
Schools
Utilities
Sewer
Septic Tank
Water Source
Well
Interior
Interior Features
Ceiling Fan(s), Eat-in Kitchen, His and Hers Closets, Kitchen Island, Open Floorplan, Pantry, Smart Thermostat and Primary Bathroom - Shower No Tub
Appliances
Convection Oven, Dryer, Disposal, Dishwasher, Electric Oven, ENERGY STAR Qualified Dishwasher, ENERGY STAR Qualified Refrigerator, Electric Range, Electric Water Heater, Induction Cooktop, Ice Maker, Microwave, Plumbed For Ice Maker, ENERGY STAR Qualified Water Heater, Refrigerator, Washer and Water Softener Owned
Cooling
Central Air
Fireplace
No
Exterior
Roof
Shingle
Garage Spaces
2
Foundation
HOA
Has HOA
None
Additional Information
Styles
Ranch
Price per Sq Ft
$235
Listing Provided By

ALAN WIND, WATSON REALTY CORP

Source

realMLS, MLS#: 2096116

Comments
Home Worth Check

Interested in 11707 Village Ln, Jacksonville FL, 32223?

By proceeding, you consent to receive calls, texts and voicemails at the number you provided (may be recorded and may be autodialed and use prerecorded and artificial voices), and email, from Home904 (Susan Takara, LLC) about your inquiry and other home-related matters. Msg/data rates may apply. This consent applies even if you are on a do not call list and is not a condition of any purchase.

Location of 11707 Village Ln, Jacksonville, FL 32223

Google Map
Mortgage Calculator
Listing Price
Down Payment
Interest Rate
This beautiful 3 beds 2 baths home is located at 11707 Village Ln, Jacksonville, FL 32223 and is listed for sale at $495,000.00. This home was built in 1971, contains 2106 square feet of living space, and sits on a 0.56 acre lot. This residential home is priced at $235.04 per square foot.

If you'd like to request a tour or more information on 11707 Village Ln, Jacksonville, FL 32223, please call us at 904-595-9249 so that we can assist you in your real estate search. To find homes like 11707 Village Ln, Jacksonville, FL 32223, you can search homes for sale in Jacksonville , or visit the neighborhood of Mandarin Village , or by 32223 . We are here to help when you're ready to contact us!

Schools Near 11707 Village Ln, Jacksonville, FL 32223

Home Details
11707 Village Ln, Jacksonville, FL 32223
Status
Active
MLS #ID
2096116
Price
$495,000
Bedrooms
3
Bathrooms
2
Square Footage
2,106
Acres
0.56
Year
1971
Days on Site
92
Property Type
Residential
Property Sub Type
Single-Family
Price per Sq Ft
$235
Date Listed
Jun 30, 2025
Community Information for 11707 Village Ln, Jacksonville, FL 32223
Address
11707 Village Ln
State
Florida
Zip Code 32223
County Duval
Schools
Utilities
Sewer
Septic Tank
Water Source
Well
Interior
Interior Features
Ceiling Fan(s), Eat-in Kitchen, His and Hers Closets, Kitchen Island, Open Floorplan, Pantry and Smart Thermostat
Appliances
Convection Oven, Dryer, Disposal, Dishwasher, Electric Oven, ENERGY STAR Qualified Dishwasher, ENERGY STAR Qualified Refrigerator, Electric Range, Electric Water Heater, Induction Cooktop, Ice Maker, Microwave, Plumbed For Ice Maker, ENERGY STAR Qualified Water Heater, Refrigerator and Washer
Cooling
Central Air
Fireplace
No
Exterior
Roof
Shingle
Garage Spaces
2
Foundation
HOA
Has HOA
None
Additional Information
Styles
Ranch
Price per Sq Ft
$235
Listing Provided By

ALAN WIND, WATSON REALTY CORP

Source

realMLS, MLS#: 2096116

Comments

Homes Similar to 11707 Village Ln, Jacksonville, FL 32223

Related Blogs
Quick Flood Check

Wondering if this property sits in a flood zone? I can verify the address and tell you what it means in plain English.

Copy/paste to message me: “Can you run a flood check on this listing?”

HomeJacksonvilleMandarin Village
Get Your Home’s Real Value — Verified by a Local Expert
Have a top local Realtor give you a FREE Comparative Market Analysis
How We Helped Our Clients
Panel only seen by widget owner
Raleigh Realty HomesRaleigh Realty Homes
Company
Home904.com logo

United Real Estate Gallery – Park Ave
United Real Estate Gallery – Park Ave
1832 Park Avenue, Orange Park, FL 32073
First Coast Cities

Home904.com was built to make home searching in Jacksonville and across Northeast Florida clearer, calmer, and more accurate—pairing real-time MLS data with on-the-ground local context so decisions feel grounded, not rushed.

The site is run by Susie Takara, REALTOR®, a Northeast Florida real estate professional with United Real Estate Gallery known for steady communication, strong negotiation, and a relationships-first approach.

Whether you’re comparing communities in Jacksonville, Orange Park, Fleming Island, Middleburg, St. Johns, or Green Cove Springs, Home904 is designed to help you understand how a home and neighborhood will actually function day to day—at your pace, with guidance available when you want it. Home904.com is owned and operated by Susan Takara, LLC


© 2026 Northeast Florida Multiple Listing Service, Inc. All rights reserved. The data relating to real estate for sale on this web site comes in part from the Internet Data Exchange (IDX) program of the Northeast Florida Multiple Listing Service, Inc. Real estate listings held by brokerage firms other than United Real Estate Gallery are marked with the listing broker’s name and detailed information about such listings includes the name of the listing brokers. Data provided is deemed reliable but is not guaranteed.