Back to Search
3419 Volley Ct, Jacksonville, FL 32277
3419 Volley Ct, Jacksonville, FL 32277 3D Tour
3419 Volley Ct, Jacksonville, FL 32277 Explore 3D Tour
3419 Volley Ct, Jacksonville, FL 32277
3419 Volley Ct, Jacksonville, FL 32277
3419 Volley Ct, Jacksonville, FL 32277
3419 Volley Ct, Jacksonville, FL 32277

3419 Volley Ct Jacksonville, FL 32277

$399,000

ACTIVE
Beds
3
Baths
3
Sqft
2,240
Acres
0.13
Year
1999
Days on Site
92
Property Type
Residential
Sub Type
Single Family
Per Square Foot
$178
Date Listed
Aug 21, 2025

Description of 3419 Volley Ct, Jacksonville, FL 32277

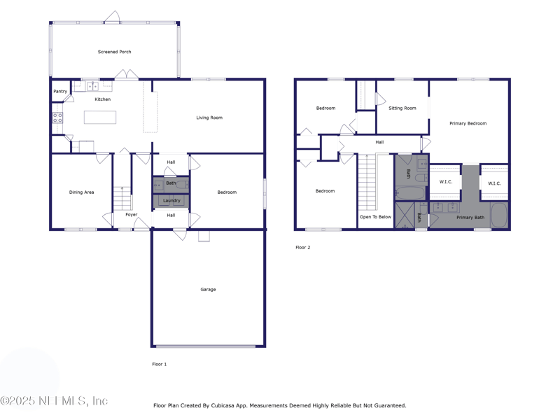
Listing details for 3419 Volley Ct, Jacksonville, FL 32277 : Assumable VA Loan at 2.875% for qualified buyers with lender approval! Move-in ready and thoughtfully upgraded, this spacious home offers flexible living with a bright, open-concept kitchen featuring quartz countertops, NEW Whirlpool Appliances, a breakfast bar, center island, two pantries, and a formal dining room. A downstairs bonus room provides ideal space for a home office, playroom, or guest area. The expansive Owner's Suite features high ceilings, dual walk-in closets, a renovated bathroom, and a large, private bonus space! Natural light flows throughout the home, creating a warm and welcoming atmosphere. Enjoy outdoor living in the screened-in lanai overlooking a fully fenced backyard. Additional upgrades include a tankless gas water heater and a water softener. Lovingly maintained, this home is ready to welcome new owners for years of comfortable living.
Listing Updated : 11-18-2025 at 01:09 PM EST
Home Details
3419 Volley Ct, Jacksonville, FL 32277
Status
Active
MLS #ID
2105035
Price
$399,000
Bedrooms
3
Bathrooms
3
Square Footage
2,240
Acres
0.13
Year
1999
Days on Site
92
Property Type
Residential
Property Sub Type
Single-Family
Price per Sq Ft
$178
Date Listed
Aug 21, 2025
Community Information for 3419 Volley Ct, Jacksonville, FL 32277
Address
3419 Volley Ct
State
Florida
Zip Code 32277
County Duval
Subdivision Forest Hills
Utilities
Sewer
Public Sewer
Water Source
Public
Interior
Interior Features
Breakfast Bar, Built-in Features, Ceiling Fan(s), Entrance Foyer, Eat-in Kitchen, His and Hers Closets, Kitchen Island, Open Floorplan, Pantry, Walk-In Closet(s) and Primary Bathroom -Tub with Separate Shower
Appliances
Disposal, Dishwasher, Electric Range, Freezer, Microwave, Refrigerator, Tankless Water Heater and Water Softener Owned
Heating
Natural Gas
Cooling
Central Air
Fireplace
No
Exterior
Roof
Shingle
Garage Spaces
2
Foundation
HOA
Has HOA
Yes
Services included
None
HOA fee
$167.5 Annually
Additional Information
Styles
Traditional
Price per Sq Ft
$178
Listing Provided By

ANTHONY CETTINA, HERRON REAL ESTATE LLC

Source

realMLS, MLS#: 2105035

Comments
Home Worth Check

Interested in 3419 Volley Ct, Jacksonville FL, 32277?

By proceeding, you consent to receive calls, texts and voicemails at the number you provided (may be recorded and may be autodialed and use prerecorded and artificial voices), and email, from Home904 (Susan Takara, LLC) about your inquiry and other home-related matters. Msg/data rates may apply. This consent applies even if you are on a do not call list and is not a condition of any purchase.

Location of 3419 Volley Ct, Jacksonville, FL 32277

Google Map
Mortgage Calculator
Listing Price
Down Payment
Interest Rate
This beautiful 3 beds 3 baths home is located at 3419 Volley Ct, Jacksonville, FL 32277 and is listed for sale at $399,000.00. This home was built in 1999, contains 2240 square feet of living space, and sits on a 0.13 acre lot. This residential home is priced at $178.13 per square foot.

If you'd like to request a tour or more information on 3419 Volley Ct, Jacksonville, FL 32277, please call us at 904-595-9249 so that we can assist you in your real estate search. To find homes like 3419 Volley Ct, Jacksonville, FL 32277, you can search homes for sale in Jacksonville , or visit the neighborhood of Forest Hills , or by 32277 . We are here to help when you're ready to contact us!

Schools Near 3419 Volley Ct, Jacksonville, FL 32277

Home Details
3419 Volley Ct, Jacksonville, FL 32277
Status
Active
MLS #ID
2105035
Price
$399,000
Bedrooms
3
Bathrooms
3
Square Footage
2,240
Acres
0.13
Year
1999
Days on Site
92
Property Type
Residential
Property Sub Type
Single-Family
Price per Sq Ft
$178
Date Listed
Aug 21, 2025
Community Information for 3419 Volley Ct, Jacksonville, FL 32277
Address
3419 Volley Ct
State
Florida
Zip Code 32277
County Duval
Subdivision Forest Hills
Utilities
Sewer
Public Sewer
Water Source
Public
Interior
Interior Features
Breakfast Bar, Built-in Features, Ceiling Fan(s), Entrance Foyer, Eat-in Kitchen, His and Hers Closets, Kitchen Island, Open Floorplan, Pantry and Walk-In Closet(s)
Appliances
Disposal, Dishwasher, Electric Range, Freezer, Microwave, Refrigerator and Tankless Water Heater
Heating
Natural Gas
Cooling
Central Air
Fireplace
No
Exterior
Roof
Shingle
Garage Spaces
2
Foundation
HOA
Has HOA
Yes
Services included
None
HOA fee
$167.5 Annually
Additional Information
Styles
Traditional
Price per Sq Ft
$178
Listing Provided By

ANTHONY CETTINA, HERRON REAL ESTATE LLC

Source

realMLS, MLS#: 2105035

Comments

Homes Similar to 3419 Volley Ct, Jacksonville, FL 32277

Related Blogs
Quick Flood Check

Wondering if this property sits in a flood zone? I can verify the address and tell you what it means in plain English.

Copy/paste to message me: “Can you run a flood check on this listing?”

HomeJacksonvilleForest Hills
Get Your Home’s Real Value — Verified by a Local Expert
Have a top local Realtor give you a FREE Comparative Market Analysis
How We Helped Our Clients
Panel only seen by widget owner
Raleigh Realty HomesRaleigh Realty Homes
Company
Home904.com logo

United Real Estate Gallery – Park Ave
United Real Estate Gallery – Park Ave
1832 Park Avenue, Orange Park, FL 32073
First Coast Cities

Home904.com was built to make home searching in Jacksonville and across Northeast Florida clearer, calmer, and more accurate—pairing real-time MLS data with on-the-ground local context so decisions feel grounded, not rushed.

The site is run by Susie Takara, REALTOR®, a Northeast Florida real estate professional with United Real Estate Gallery known for steady communication, strong negotiation, and a relationships-first approach.

Whether you’re comparing communities in Jacksonville, Orange Park, Fleming Island, Middleburg, St. Johns, or Green Cove Springs, Home904 is designed to help you understand how a home and neighborhood will actually function day to day—at your pace, with guidance available when you want it. Home904.com is owned and operated by Susan Takara, LLC


© 2026 Northeast Florida Multiple Listing Service, Inc. All rights reserved. The data relating to real estate for sale on this web site comes in part from the Internet Data Exchange (IDX) program of the Northeast Florida Multiple Listing Service, Inc. Real estate listings held by brokerage firms other than United Real Estate Gallery are marked with the listing broker’s name and detailed information about such listings includes the name of the listing brokers. Data provided is deemed reliable but is not guaranteed.