Back to Search
2301 Country Side Dr, Fleming Island, FL 32003
2301 Country Side Dr, Fleming Island, FL 32003 3D Tour
2301 Country Side Dr, Fleming Island, FL 32003 Explore 3D Tour
2301 Country Side Dr, Fleming Island, FL 32003
2301 Country Side Dr, Fleming Island, FL 32003
2301 Country Side Dr, Fleming Island, FL 32003
2301 Country Side Dr, Fleming Island, FL 32003

2301 Country Side Dr Fleming Island, FL 32003

$515,000

ACTIVE
Beds
4
Baths
3
Sqft
2,500
Acres
0.21
Year
2006
Days on Site
27
Property Type
Residential
Sub Type
Single Family
Per Square Foot
$206
Date Listed
Dec 17, 2025

Description of 2301 Country Side Dr, Fleming Island, FL 32003

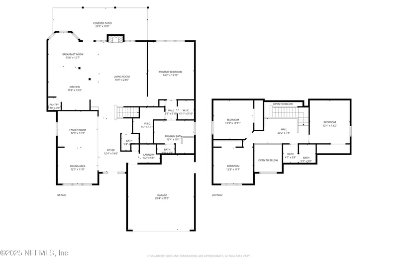
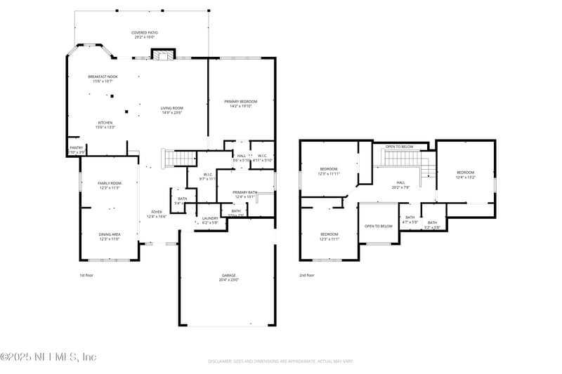
Listing details for 2301 Country Side Dr, Fleming Island, FL 32003 : Set in Eagle Harbor, one of Fleming Island's most sought-after communities, 2301 Country Side Dr checks the boxes buyers want most: great schools, resort-style amenities, and a truly move-in-ready home. Situated on a corner lot and priced to sell, this home is loaded with upgrades that make it turn-key from day one. Step inside to a bright, open feel with vaulted ceilings in the main living area, and a layout designed for comfortable everyday living. The primary bedroom is downstairs and features a spacious en-suite bath with a marble garden tub, walk-in shower, and double vanity. Out back, enjoy a covered patio—perfect for relaxing or entertaining year-round. The major updates are already done, so you can buy with confidence. 2024 improvements include a new roof, new HVAC, fresh interior and exterior paint, new carpet, a new gutter system, and an epoxy-coated garage floor—plus new ceiling fans throughout, all new door hardware, new faucets, and updated lighting fixtures inside and out. In 2025, the sellers added continuous LVP flooring across the main living areas for a fresh, modern look and low-maintenance living. The kitchen shines with brand-new stainless steel appliances featuring Samsung Smart Control. If you've been waiting for a clean, updated Eagle Harbor home that's priced for a quick sale, this is the one. Schedule your showing today and make it yours.
Listing Updated : 02-01-2026 at 11:16 PM EST
Home Details
2301 Country Side Dr, Fleming Island, FL 32003
Status
Active
MLS #ID
2121962
Price
$515,000
Bedrooms
4
Bathrooms
3
Square Footage
2,500
Acres
0.21
Year
2006
Days on Site
27
Property Type
Residential
Property Sub Type
Single-Family
Price per Sq Ft
$206
Date Listed
Dec 17, 2025
Community Information for 2301 Country Side Dr, Fleming Island, FL 32003
Address
2301 Country Side Dr
State
Florida
Zip Code 32003
County Clay
Subdivision Eagle Harbor
Schools
Utilities
Sewer
Public Sewer
Water Source
Public
Interior
Interior Features
Entrance Foyer, Open Floorplan, Pantry, Primary Downstairs, Vaulted Ceiling(s), Primary Bathroom -Tub with Separate Shower and Breakfast Nook
Appliances
Disposal, Dishwasher, Electric Cooktop, Electric Oven, Electric Range, Electric Water Heater, Microwave and Refrigerator
Cooling
Central Air, Electric and Zoned
Fireplace
Yes
# of Fireplaces
1
Exterior
Roof
Shingle
Garage Spaces
2
Foundation
HOA
Has HOA
Yes
Services included
None
HOA fee
$120 Annually
Additional Information
Styles
Traditional
Price per Sq Ft
$206
Listing Provided By

MESHELL PERRY, DOGWOOD REALTY FLORIDA

Source

realMLS, MLS#: 2121962

Comments
Home Worth Check

Interested in 2301 Country Side Dr, Fleming Island FL, 32003?

By proceeding, you consent to receive calls, texts and voicemails at the number you provided (may be recorded and may be autodialed and use prerecorded and artificial voices), and email, from Home904 (Susan Takara, LLC) about your inquiry and other home-related matters. Msg/data rates may apply. This consent applies even if you are on a do not call list and is not a condition of any purchase.

Location of 2301 Country Side Dr, Fleming Island, FL 32003

Google Map
Mortgage Calculator
Listing Price
Down Payment
Interest Rate
This beautiful 4 beds 3 baths home is located at 2301 Country Side Dr, Fleming Island, FL 32003 and is listed for sale at $515,000.00. This home was built in 2006, contains 2500 square feet of living space, and sits on a 0.21 acre lot. This residential home is priced at $206.00 per square foot.

If you'd like to request a tour or more information on 2301 Country Side Dr, Fleming Island, FL 32003, please call us at 904-595-9249 so that we can assist you in your real estate search. To find homes like 2301 Country Side Dr, Fleming Island, FL 32003, you can search homes for sale in Fleming Island , or visit the neighborhood of Eagle Harbor , or by 32003 . We are here to help when you're ready to contact us!

Schools Near 2301 Country Side Dr, Fleming Island, FL 32003

Walking & Transportation

Walk score
2
Car-Dependent
Bike score
26
Somewhat Bikeable
Home Details
2301 Country Side Dr, Fleming Island, FL 32003
Status
Active
MLS #ID
2121962
Price
$515,000
Bedrooms
4
Bathrooms
3
Square Footage
2,500
Acres
0.21
Year
2006
Days on Site
27
Property Type
Residential
Property Sub Type
Single-Family
Price per Sq Ft
$206
Date Listed
Dec 17, 2025
Community Information for 2301 Country Side Dr, Fleming Island, FL 32003
Address
2301 Country Side Dr
State
Florida
Zip Code 32003
County Clay
Subdivision Eagle Harbor
Schools
Utilities
Sewer
Public Sewer
Water Source
Public
Interior
Interior Features
Entrance Foyer, Open Floorplan, Pantry, Primary Downstairs, Vaulted Ceiling(s) and Primary Bathroom -Tub with Separate Shower
Appliances
Disposal, Dishwasher, Electric Cooktop, Electric Oven, Electric Range, Electric Water Heater and Microwave
Cooling
Central Air and Electric
Fireplace
Yes
# of Fireplaces
1
Exterior
Roof
Shingle
Garage Spaces
2
Foundation
HOA
Has HOA
Yes
Services included
None
HOA fee
$120 Annually
Additional Information
Styles
Traditional
Price per Sq Ft
$206
Listing Provided By

MESHELL PERRY, DOGWOOD REALTY FLORIDA

Source

realMLS, MLS#: 2121962

Comments

Homes Similar to 2301 Country Side Dr, Fleming Island, FL 32003

Quick Flood Check

Wondering if this property sits in a flood zone? I can verify the address and tell you what it means in plain English.

Copy/paste to message me: “Can you run a flood check on this listing?”

HomeFleming IslandEagle Harbor
Get Your Home’s Real Value — Verified by a Local Expert
Have a top local Realtor give you a FREE Comparative Market Analysis
How We Helped Our Clients
Panel only seen by widget owner
Raleigh Realty HomesRaleigh Realty Homes
Company
Home904.com logo

United Real Estate Gallery – Park Ave
United Real Estate Gallery – Park Ave
1832 Park Avenue, Orange Park, FL 32073
First Coast Cities

Home904.com was built to make home searching in Jacksonville and across Northeast Florida clearer, calmer, and more accurate—pairing real-time MLS data with on-the-ground local context so decisions feel grounded, not rushed.

The site is run by Susie Takara, REALTOR®, a Northeast Florida real estate professional with United Real Estate Gallery known for steady communication, strong negotiation, and a relationships-first approach.

Whether you’re comparing communities in Jacksonville, Orange Park, Fleming Island, Middleburg, St. Johns, or Green Cove Springs, Home904 is designed to help you understand how a home and neighborhood will actually function day to day—at your pace, with guidance available when you want it. Home904.com is owned and operated by Susan Takara, LLC


© 2026 Northeast Florida Multiple Listing Service, Inc. All rights reserved. The data relating to real estate for sale on this web site comes in part from the Internet Data Exchange (IDX) program of the Northeast Florida Multiple Listing Service, Inc. Real estate listings held by brokerage firms other than United Real Estate Gallery are marked with the listing broker’s name and detailed information about such listings includes the name of the listing brokers. Data provided is deemed reliable but is not guaranteed.